1200 94th St, Miami Shores, FL 33138
Description
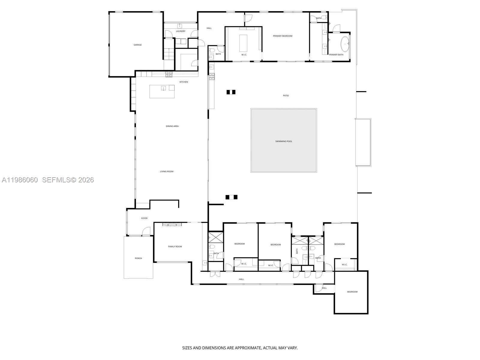
Villa Serene is a show-stopping corner lot estate where modern luxury meets coastal elegance, just steps from Biscayne Bay. Set on a 17,880 sq ft corner lot, this residence offers over 5,100 sq ft of refined living space with soaring 12-ft ceilings and imported Italian wood floors throughout. Designed for seamless indoor-outdoor living, every room opens to a resort-style saltwater pool, creating a private oasis ideal for both relaxation and entertaining. The chef’s kitchen features top-of-the-line Thermador appliances, a built-in hibachi grill, wine bar, and a pass-through to the outdoor kitchen. All bedrooms are en-suite, offering comfort and privacy. Smart home upgrades include Lutron lighting, whole-home water filtration, EV chargers, a 33kW generator, and advanced security. Additional highlights include double washers and dryers and expansive entertaining areas. Located in one of Miami Shores’ most desirable neighborhoods, Villa Serene is a rare turnkey opportunity and one of the area’s finest homes. *5th bedroom is a garage conversion - Furniture is negotiable
1200 94Th St, Miami Shores, Fl 33138 | Floor Plans
- Days On Market:11Listed:Mar 21, 2026
- Size:5155 ft2 (479m2)Rooms:5
- Bathrooms:5Baths Half:1
- Terms:All Cash, ConventionalProperty Facing:West
- Last Modification:12 hours ago
Property Taxes and Assessment
- Annual Tax$72,166
- Tax Year2025
- Maintenance FeeN/A
- Association FeeN/A
- TermsAll Cash, Conventional
Property Features
| Facts and features |
|---|
| Views Garden Pool |
| Interior Features First Floor Entry Bar Built-in Features Closet Cabinetry Cooking Island Entrance Foyer Laundry Tub Pantry Split Bedroom Volume Ceilings Walk-In Closet(s) Family Room Great Room Utility Room/Laundry |
| Exterior Features Built-In Grill Fruit Trees Open Balcony Outdoor Shower |
| Appliances Trash Compactor Dishwasher Ice Maker Microwave Water Purifier Gas Range Refrigerator Washer Water Softener Owned |
| Parking Driveway Electric Vehicle Charging Station(s) Guest |
| Other Facts |
|---|
| Heating Electric |
| Cooling Central Air |
| Flooring Wood |
| Window Features Complete Impact Glass Blinds High Impact Windows Impact Glass |
| Door Features High Impact Doors |
| Roof Concrete |
| Fencing Fenced |
| Water Source Municipal Water |
| Sewer Septic Tank |
| Green Energy Appliances |
| Amenities |
|---|
| Pool Features In Ground Concrete Heated |
| Laundry Features Laundry Tub Utility Room/Laundry Washer/Dryer Hook-Up |
| Patio And Porch Features Open Balcony Patio |
| Community Features Pool Tennis Court(s) Golf Course Community Pickleball |
| Architectural Style Detached One Story Modern/Contemporary |
| Construction Materials Concrete Block Construction |
| Structure Type Pool Only House |
| Schools |
|---|
| Elementary School Miami Shores |
| Middle Or Junior School Horace Mann |
| High School Miami Edison |
Ask the experts
Tell Us More About Your Search
Get custom listing picks, neighborhood insights, and pricing context tailored to your criteria.
