1413 17th Way, Fort Lauderdale, FL 33304
For Sale $650,000
Description
Welcome to 1413 NE 17th Way, a charming 3-bedroom home in highly sought-after Poinsettia Heights, neighborhood celebrated for its quiet tree-lined streets, friendly community, & sense of safety. Where property values are soaring & luxury new constructions reach multi-million prices. This residence features full impact windows throughout, a large front-yard pool, and a screened front porch with a counter area & mini fridge—perfect for entertaining. The lush, expansive backyard offers a workshop with impact windows plus a storage shed. Ideally located across A+ elementary & middle school, and just minutes from Trader Joe’s, Publix, top retail, dining, and Fort Lauderdale’s best beaches. Property is fully fenced! NO HOA. Perfect for Primary home, vacation home or investment.
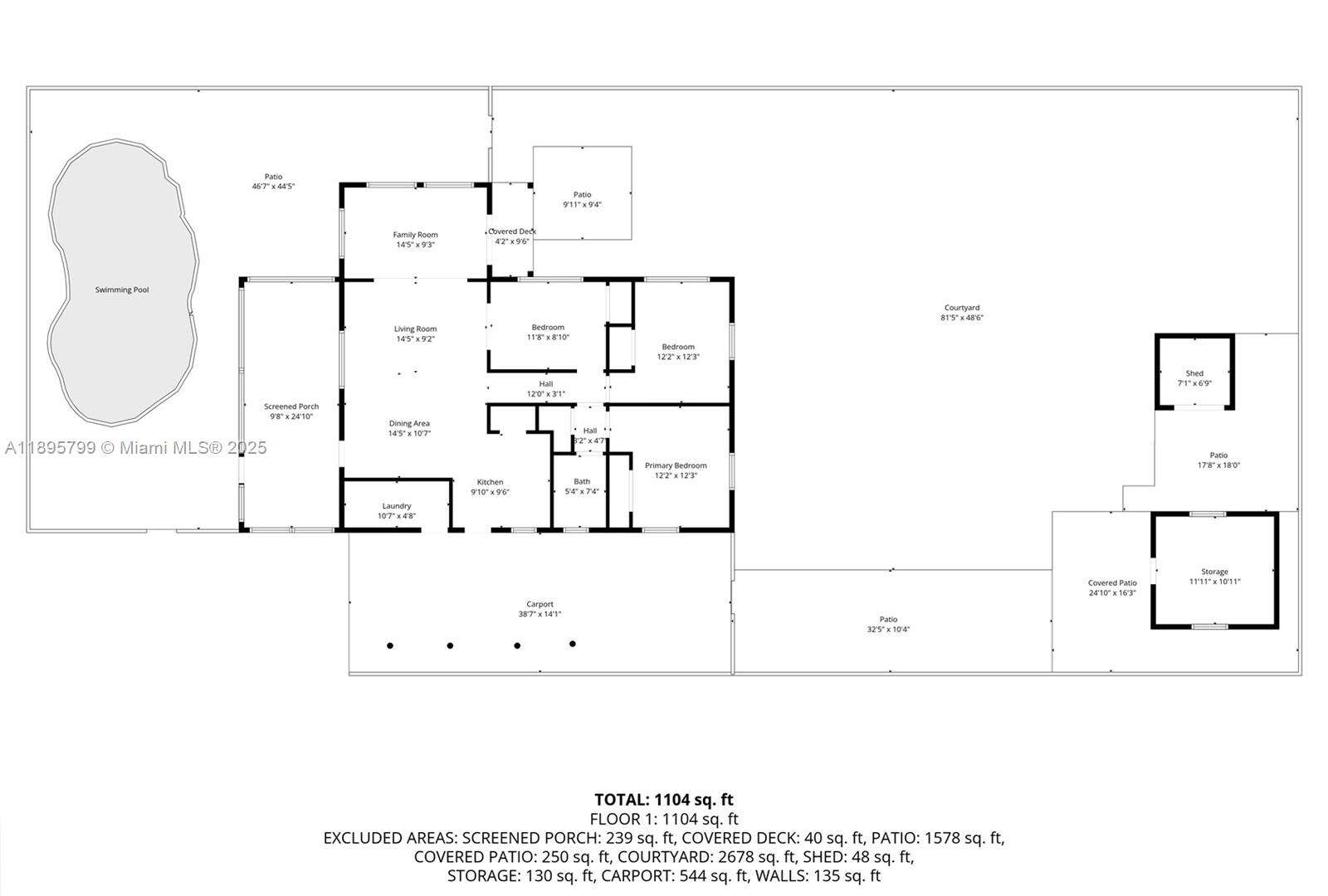
1413 17Th Way, Fort Lauderdale, Fl 33304 | Floor Plans
- Days On Market:54Listed:Oct 16, 2025
- Size:1108 ft2 (103m2)Rooms:3
- Bathrooms:1Baths Half:0
- Terms:All Cash, ConventionalProperty Facing:East
- Last Modification:5 days ago
Property Taxes and Assessment
- Annual Tax$655
- Tax Year2024
- Maintenance FeeN/A
- Association FeeN/A
- TermsAll Cash, Conventional
Property Features
| Facts and features |
|---|
| Views Garden Pool |
| Interior Features First Floor Entry French Doors Den/Library/Office Family Room Workshop |
| Exterior Features Outdoor Shower |
| Appliances Dryer Electric Range Refrigerator Washer |
| Parking Attached Carport Additional Spaces Available Driveway Golf Cart Parking |
| Other Facts |
|---|
| Heating Central |
| Cooling Central Air |
| Flooring Tile |
| Door Features High Impact Doors French Doors |
| Roof Shingle |
| Water Source Municipal Water |
| Sewer Public Sewer |
| Amenities |
|---|
| Pool Features In Ground |
| Patio And Porch Features Patio Screened Porch |
| Community Features Additional Amenities Street Lights |
| Architectural Style Attached One Story |
| Construction Materials CBS Construction |
| Structure Type Pool Only House |
| Schools |
|---|
| Elementary School Bennett |
| Middle Or Junior School Sunrise |
| High School Fort Lauderdale |
Tell Us More About Your SearchFind your perfect condo
Courtesy Of:Avanti Way Realty LLC



























