360 28th Rd, Miami, FL 33129
Description
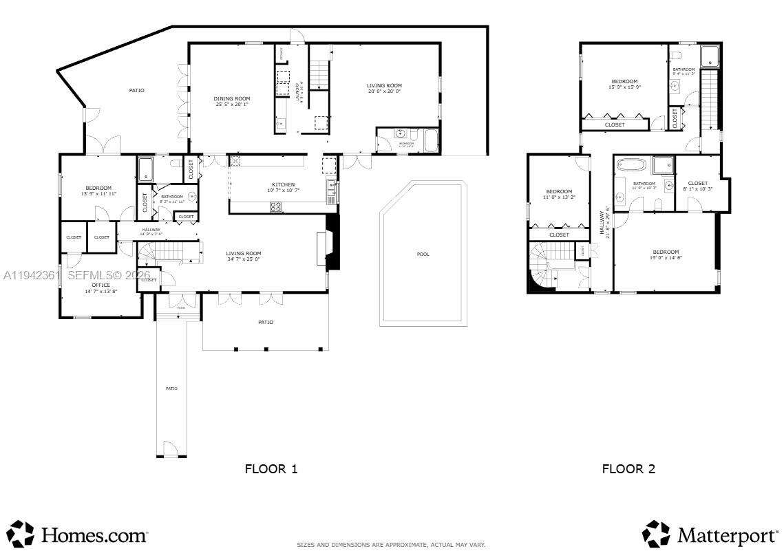
Located in The Roads, one of Miami’s most desirable & centrally located neighborhoods, this 5-bedroom, 4-bath Spanish-style corner-lot residence offers rare scale, character,& timeless charm. Unlike much of today’s newer construction, the home features warm, inviting spaces & architectural details that are increasingly hard to find. A true rarity in The Roads, the residence offers generous interior volumes—larger than many older homes in the area—without the sterile feel or premium pricing of newer construction. The family room showcases vaulted ceilings with beautiful exposed wood paneling, creating a welcoming focal point for everyday living & entertaining. The home features formal living & formal dining areas, two staircases, two fireplaces, & a spacious kitchen equipped with two dishwashers, ideal for hosting & multi-generational living. Impact windows & doors are installed throughout, with accordion shutters protecting the French doors for added peace of mind. Outdoor living features a fully walled property for added privacy, multiple patios, lush turf landscaping, & a pool, creating a private, easily maintained, & inviting setting for year-round enjoyment. Perfectly positioned within walking distance to the Underline, Vizcaya, Brickell, & just minutes from Coconut Grove, Coral Gables, & Miami’s premier dining, shopping, & lifestyle destinations. Immediate access to I-95 provides convenient connectivity throughout South Florida.
360 28Th Rd, Miami, Fl 33129 | Floor Plans
- Days On Market:107Listed:Jan 20, 2026
- Size:4033 ft2 (375m2)Rooms:5
- Bathrooms:4Baths Half:0
- Terms:All Cash, ConventionalProperty Facing:Northeast
- Last Modification:14 hours agoPrice Change:-1.85%
Property Taxes and Assessment
- Annual Tax$21,623
- Tax Year2026
- Maintenance FeeN/A
- Association FeeN/A
- TermsAll Cash, Conventional
Property Features
| Facts and features |
|---|
| Views Garden |
| Interior Features First Floor Entry Closet Cabinetry Entrance Foyer French Doors Pantry Roman Tub Vaulted Ceiling(s) Walk-In Closet(s) Den/Library/Office Family Room Great Room Media Room |
| Exterior Features Lighting |
| Appliances Dishwasher Disposal Dryer Electric Water Heater Ice Maker Microwave Other Equipment/Appliances Gas Range Refrigerator Wall Oven Washer |
| Parking Attached Carport Covered Driveway Electric Vehicle Charging Station(s) |
| Other Facts |
|---|
| Heating Central |
| Cooling Ceiling Fan(s) Central Air |
| Electric Circuit Breakers |
| Flooring Tile Wood |
| Window Features Clear Impact Glass Complete Other Protection Partial Accordian Shutters Partial Impact Glass Blinds High Impact Windows |
| Door Features High Impact Doors French Doors |
| Fireplace Features Fireplace |
| Roof Barrel Roof |
| Water Source Municipal Water |
| Sewer Public Sewer |
| Amenities |
|---|
| Pool Features In Ground Heated |
| Patio And Porch Features Open Porch Patio |
| Architectural Style Attached Two Story Mediterranean |
| Construction Materials CBS Construction |
| Structure Type Pool Only House |
| Schools |
|---|
| Elementary School Coral Way |
| Middle Or Junior School Shenandoah |
| High School Miami Senior |
Ask the experts
Tell Us More About Your Search
Get custom listing picks, neighborhood insights, and pricing context tailored to your criteria.
