3700 Hibiscus St, Miami, FL 33133
For Sale $11,995,000
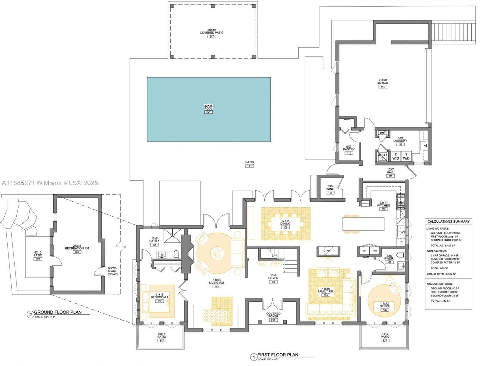
Description
Set on a serene 21,000 sf gated estate in Coconut Grove, this Richard Kiehnel–designed Spanish Colonial home combines rich history with modern luxury. The main residence offers 5 ensuites, a living room w/ fireplace, open kitchen/dining w/ Sub-Zero/Wolf appliances & quartzite counters, wine room, laundry, and family room. The primary suite features dual walk-ins, original clawfoot tub, and two-person shower. The private guest house adds the 6th bedroom, sep. kitchen & living. Recent upgrades include new impact windows/doors, and roof w/ copper gutters. Outdoor amenities include a new pool w/ auto closer, covered patio, summer kitchen, and lush landscaping. With dual gated entrances and walking distance to top schools, this estate is a rare Grove sanctuary for elegant living & entertaining.
3700 Hibiscus St, Miami, Fl 33133 | Floor Plans
- Days On Market:97Listed:Sep 29, 2025
- Size:5458 ft2 (507m2)Rooms:6
- Bathrooms:6Baths Half:1
- Terms:All Cash, ConventionalProperty Facing:East
- Last Modification:2 days agoPrice Change:-4.04%
Property Taxes and Assessment
- Annual Tax$16,078
- Tax Year2024
- Maintenance FeeN/A
- Association FeeN/A
- TermsAll Cash, Conventional
Property Features
| Facts and features |
|---|
| Views Garden Pool |
| Interior Features First Floor Entry Built-in Features Closet Cabinetry Cooking Island Custom Mirrors Walk-In Closet(s) Den/Library/Office Recreation Room Storage |
| Exterior Features Barbeque Built-In Grill Lighting Fruit Trees Outdoor Shower |
| Appliances Dishwasher Disposal Dryer Electric Water Heater Ice Maker Other Equipment/Appliances Gas Range Refrigerator Washer |
| Parking Circular Driveway Driveway Guest |
| Other Facts |
|---|
| Heating Electric |
| Cooling Electric |
| Flooring Wood |
| Window Features Complete Impact Glass Arched Windows High Impact Windows |
| Door Features High Impact Doors |
| Fireplace Features Fireplace |
| Roof Barrel Roof Flat Roof With Facade Front |
| Fencing Fenced |
| Water Source Municipal Water |
| Sewer Septic Tank |
| Green Energy Appliances Doors HVAC Thermostat Water Heater Windows |
| Amenities |
|---|
| Pool Features Auto Pool Clean In Ground Fenced Heated |
| Patio And Porch Features Patio |
| Community Features None |
| Architectural Style Attached Two Story Old Spanish |
| Construction Materials CBS Construction Stucco |
| Structure Type Pool Only House |
| Schools |
|---|
| Elementary School Coconut Grove |
| Middle Or Junior School Ponce De Leon |
| High School Coral Gables |
Tell Us More About Your SearchFind your perfect condo
Courtesy Of:Douglas Elliman
















































































