41 24th St, Wilton Manors, FL 33305
For Sale $1,795,000
Description
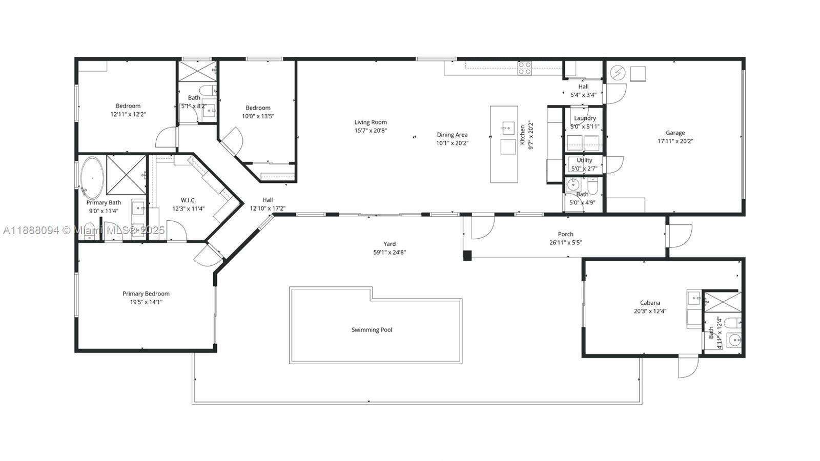
This modern new construction home outside flood zone offers 4 bedrooms, including a detached cabana with kitchenette and ensuite bath that doubles as a proven income generator. Open, loft-like interiors with soaring ceilings create a bright, minimalist backdrop. The chef’s kitchen is both stylish and functional, featuring quartzite counters and a 10' island that anchors the living area. The primary suite feels like a retreat, with a massive walk-in closet and spa bath showcasing Italian fixtures, including the Rapsel Arne soaking tub and Fantini dual showers. Outdoors, enjoy a heated saltwater pool and lush gardens. Solid concrete construction, impact glass, solar panels, EV charger, elevated from the street—and just minutes to Wilton Drive. Low insurance cost + Two-car garage.
41 24Th St, Wilton Manors, Fl 33305 | Floor Plans
- Days On Market:63Listed:Oct 1, 2025
- Size:2211 ft2 (205m2)Rooms:4
- Bathrooms:3Baths Half:1
- Terms:All Cash, Conventional, FHA, VA LoanProperty Facing:South
- Last Modification:1 week agoPrice Change:-2.97%
Property Taxes and Assessment
- Annual Tax$21,741
- Tax Year2025
- Maintenance FeeN/A
- Association FeeN/A
- TermsAll Cash, Conventional, FHA, VA Loan
Property Features
| Facts and features |
|---|
| Views None |
| Interior Features First Floor Entry Walk-In Closet(s) Separate Guest/In-Law Quarters Recreation Room |
| Appliances Dishwasher Disposal Dryer Electric Water Heater |
| Parking Driveway |
| Other Facts |
|---|
| Heating Central |
| Cooling Central Air |
| Window Features High Impact Windows |
| Roof Concrete |
| Water Source Municipal Water |
| Sewer Public Sewer |
| Green Energy Solar Panels |
| Amenities |
|---|
| Pool Features Heated |
| Patio And Porch Features Patio |
| Community Features None |
| Architectural Style Detached One Story |
| Construction Materials Pre-Cast Concrete Construction |
| Structure Type Pool Only House |
| Schools |
|---|
| Elementary School Wilton Manors |
| Middle Or Junior School Sunrise |
| High School Fort Lauderdale |
Tell Us More About Your SearchFind your perfect condo
Courtesy Of:Maz Group FL LLC





















