4721 6th Ave, Miami, FL 33127
Description
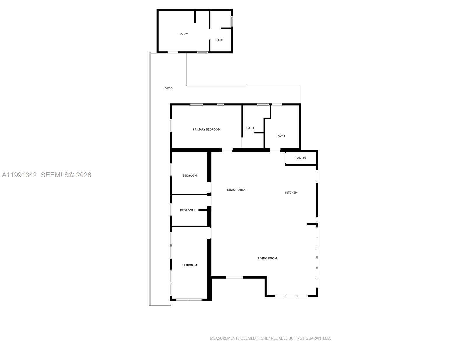
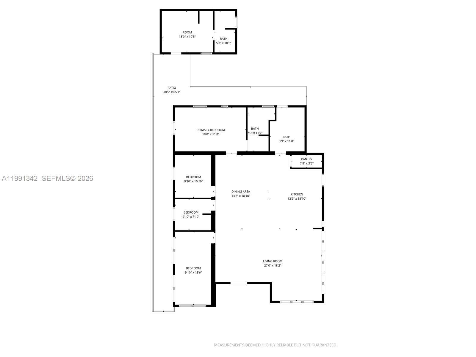
Fully renovated and move-in ready, this stunning property has been completely gut renovated with permits, offering the feel of brand-new construction. Every major component has been replaced, including a new roof, plumbing, electrical system, impact windows and doors, A/C, water heater, and more—providing true peace of mind for the new owner. The main residence features 3 bedrooms, 2 full bathrooms, plus a spacious den that can easily function as a 4th bedroom. The home offers approximately 2,000 sqft of modern living space with an open layout, high-end finishes, brand-new kitchen, updated flooring, and top-of-the-line appliances. Additionally, the property includes a fully independent guest house with its own kitchen, full bathroom, and 1 bedroom—perfect for extended family, rental income, or Airbnb potential. Modern design throughout with smart home features, premium upgrades, and excellent functionality. A rare opportunity to own a fully upgraded, turnkey property.
4721 6Th Ave, Miami, Fl 33127 | Floor Plans
- Days On Market:0Listed:Mar 30, 2026
- Size:2091 ft2 (194m2)Rooms:5
- Bathrooms:3Baths Half:0
- Terms:All Cash, Conventional, FHAProperty Facing:West
- Last Modification:1 day ago
Property Taxes and Assessment
- Annual Tax$10,600
- Tax Year2026
- Maintenance FeeN/A
- Association FeeN/A
- TermsAll Cash, Conventional, FHA
Property Features
| Facts and features |
|---|
| Views None |
| Interior Features First Floor Entry Built-in Features Closet Cabinetry Cooking Island Custom Mirrors Fire Sprinklers Pantry Vaulted Ceiling(s) Cottage Den/Library/Office Separate Guest/In-Law Quarters Maid/In-Law Quarters Utility Room/Laundry |
| Exterior Features Open Balcony Room For Pool |
| Appliances Trash Compactor Dishwasher Disposal Dryer Electric Water Heater Ice Maker Microwave Electric Range Refrigerator Self Cleaning Oven Washer |
| Parking Additional Spaces Available On Street |
| Other Facts |
|---|
| Heating Central |
| Cooling Central Air |
| Electric Circuit Breakers |
| Flooring Tile |
| Door Features High Impact Doors |
| Roof Shingle |
| Fencing Fenced |
| Water Source Municipal Water |
| Sewer Public Sewer |
| Amenities |
|---|
| Laundry Features Utility Room/Laundry |
| Patio And Porch Features Deck Open Balcony |
| Community Features Paved Road Picnic Area Public Road Sidewalks Street Lights |
| Architectural Style Attached One Story Modern/Contemporary |
| Construction Materials Concrete Block Construction |
| Structure Type R30-No Pool/No Water House |
| Schools |
|---|
| Elementary School Shadowlawn |
| High School Miami Edison |
Ask the experts
Tell Us More About Your Search
Get custom listing picks, neighborhood insights, and pricing context tailored to your criteria.
