5711 20th Ter, Fort Lauderdale, FL 33308
Description
OPEN HOUSE this Saturday, 03/07 from 12:00pm -3:00pm.THIS BEAUTIFUL AND FULLY RENOVATED 3 BEDROOM/2 BATHROOM RESIDENCE WITH HEATED POOL OFFERS A SPLIT-PLAN DESIGN, WITH A PRIVATE SPACIOUS FAMILY ROOM THAT CAN EASILY BE USED AS A HOME OFFICE OR PLAYROOM. EVERYTHING BRAND NEW: GALVANIZED METAL ROOF & GUTTER SYSTEM, AC 3.5 TON W/ DUCTS, HIGHEST GRADE IMPACT WINDOWS & DOORS, ALL PVC PLUMBING, INCLUDING DRAINAGE, PORCELAIN TILE FLOORING THROUGHOUT, MODERN OPEN KITCHEN WITH THICK QUARTZ WATERFALL COUNTERTOP AND STAINLESS STILL APPLIANCES, GORGEOUS BATHROOMS, MODERN LIGHT FIXTURES, SMART-HOME LIKE NEST THERMOSTAT, RING CAMERAS, RAIN-BIRD SMART IRRIGATION CONTROLLER, SEPARATE LAUNDRY ROOM WITH NEW WASHER/DRYER, PVC FENCED YARD, DIAMOND BRITE HEATED POOL, LANDSCAPING, SPRINKLER SYSTEM, EXPANDED CIRCULAR CONCRETE DRIVEWAY, LARGE 2 CAR GARAGE WITH EPOXY FLOORING AND AUTOMATIC GARAGE DOOR OPENER. HOME SETS ON SPACIOUS LOT IN THE COLONIAL RIDGE, NEXT TO DESIRABLE IMPERIAL POINT.JUST MINUTES FROM PINE CREAST SCHOOL AND WESTMINSTER ACADEMY, SHOPPING CENTERS, RESTAURANTS, BEACH.
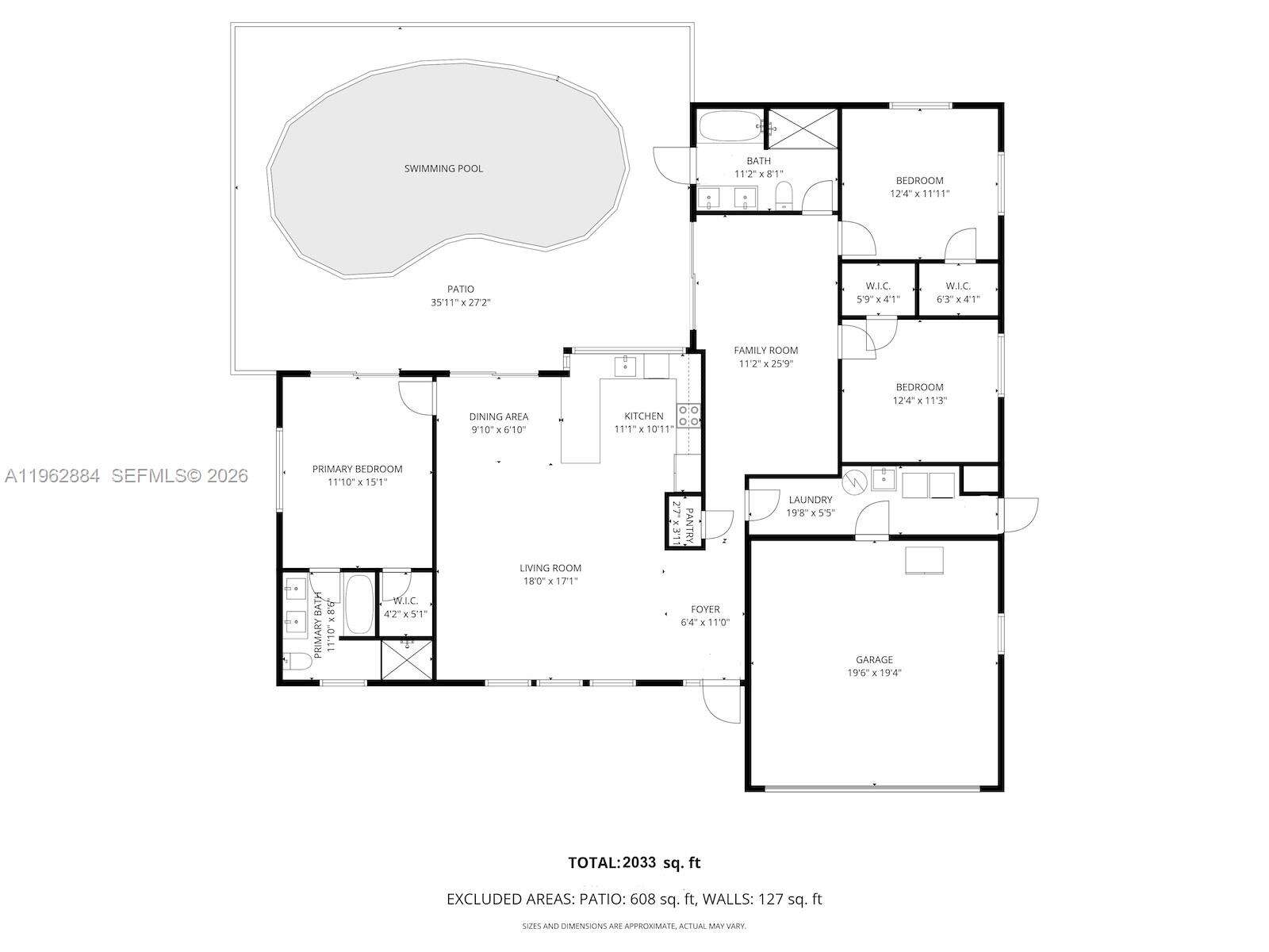
5711 20Th Ter, Fort Lauderdale, Fl 33308 | Floor Plans
- Days On Market:6Listed:Feb 24, 2026
- Size:1663 ft2 (154m2)Rooms:3
- Bathrooms:2Baths Half:0
- Terms:All Cash, ConventionalProperty Facing:East
- Last Modification:2 days ago
Property Taxes and Assessment
- Annual Tax$11,373
- Tax Year2025
- Maintenance FeeN/A
- Association FeeN/A
- TermsAll Cash, Conventional
Property Features
| Facts and features |
|---|
| Views Garden Pool |
| Interior Features First Floor Entry Entrance Foyer Laundry Tub Pantry 3 Bedroom Split Walk-In Closet(s) Family Room Utility Room/Laundry |
| Exterior Features Lighting |
| Appliances Dishwasher Disposal Dryer Electric Water Heater Microwave Electric Range Refrigerator Washer |
| Parking Circular Driveway Covered Driveway |
| Other Facts |
|---|
| Heating Central Electric |
| Cooling Ceiling Fan(s) Central Air Electric |
| Window Features Complete Impact Glass Blinds High Impact Windows Impact Glass |
| Door Features High Impact Doors |
| Roof Metal Roof |
| Fencing Fenced |
| Water Source Municipal Water |
| Sewer Public Sewer |
| Green Energy Appliances HVAC Lighting Thermostat Water Heater |
| Amenities |
|---|
| Pool Features In Ground Heated |
| Laundry Features Laundry Tub Utility Room/Laundry |
| Patio And Porch Features Patio |
| Community Features Paved Road Public Road |
| Architectural Style Attached One Story Split Level |
| Construction Materials CBS Construction |
| Structure Type Pool Only House |
| Schools |
|---|
| Elementary School Floranada |
| Middle Or Junior School James S. Rickards |
| High School Northeast |
Ask the experts
Tell Us More About Your Search
Get custom listing picks, neighborhood insights, and pricing context tailored to your criteria.
