790 55th Ter, Miami, FL 33127
For Sale $290,000
Description
Investor special! Demolition work has been completed, and a full set of plans is included. Located in a rapidly growing neighborhood surrounded by new construction and redevelopment projects. Great opportunity for investors, builders, or developers to start fresh and build in one of the area’s most up-and-coming locations. Don’t miss your chance to secure a property with strong appreciation potential and endless possibilities!
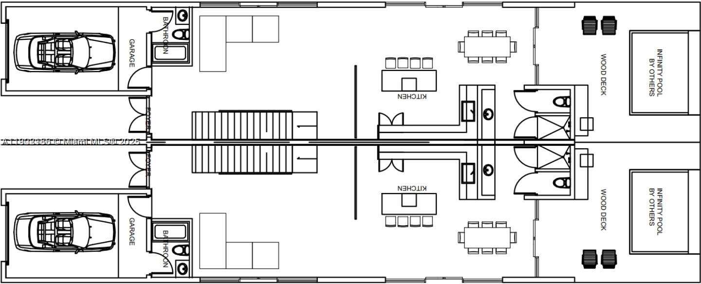
790 55Th Ter, Miami, Fl 33127 | Floor Plans
- Days On Market:48Listed:Oct 24, 2025
- Size:1515 ft2 (141m2)Rooms:Studio
- Bathrooms:0Baths Half:0
- Terms:All Cash, Conventional, FHAProperty Facing:Northwest
- Last Modification:3 days agoPrice Change:-19.22%
Property Taxes and Assessment
- Annual Tax$2,637
- Tax Year2024
- Maintenance FeeN/A
- Association FeeN/A
- TermsAll Cash, Conventional, FHA
Property Features
| Facts and features |
|---|
| Views None |
| Interior Features First Floor Entry |
| Exterior Features None |
| Parking None |
| Other Facts |
|---|
| Heating None |
| Cooling None |
| Water Source Municipal Water |
| Sewer Public Sewer |
| Amenities |
|---|
| Community Features None |
| Architectural Style Detached |
| Structure Type R30-No Pool/No Water House |
| Schools |
|---|
| Elementary School Orchard Villa |
| Middle Or Junior School Brownsville |
Tell Us More About Your SearchFind your perfect condo
Courtesy Of:One Group Florida LLC






