17111 Biscayne Blvd, North Miami Beach, FL 33160
For Sale $1,290,000
Description
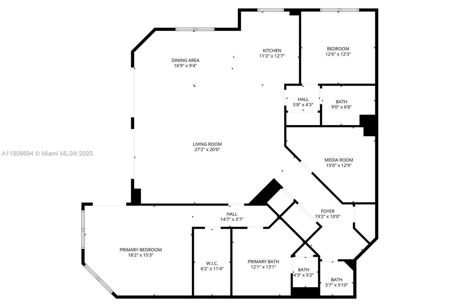
This Gorgeous Unit at The Reserve at Marina Palms — is a designer-furnished, move-in-ready corner residence offering 1,958 sqft of refined luxury. This spacious 2-bedroom, 2.5-bath layout includes a den thoughtfully converted into a third guest bedroom, perfect for guests or a home office. It has breathtaking south and southwest views of the bay, Intracoastal, and lake through floor-to-ceiling windows and from a large private terrace ideal for indoor-outdoor living. The open kitchen features custom Snaidero cabinetry, gleaming quartz counters, and premium Wolf appliances that elevate the designer kitchen. Architectural details, custom doors, and designer window treatments elevate the interior.
Marina Palms | Floor Plans
- Days On Market:16Listed:Nov 5, 2025
- Size:1958 ft2 (182m2)Rooms:2
- Bathrooms:2Baths Half:1
- Terms:All Cash, ConventionalProperty Facing:Southwest
- Last Modification:14 hours agoPrice Change:-0.77%
Property Taxes and Assessment
- Annual Tax$14,168
- Tax Year2025
- Maintenance FeeN/A
- Association Fee$2,083
- TermsAll Cash, Conventional
Property Features
| Facts and features |
|---|
| Views Bay Intracoastal View Lagoon Lake Ocean View Intracoastal Front Lagoon |
| Interior Features First Floor Entry Closet Cabinetry Cooking Island Fire Sprinklers Entrance Foyer Split Bedroom Walk-In Closet(s) Family Room Utility Room/Laundry |
| Exterior Features Open Balcony |
| Appliances Dishwasher Disposal Dryer Electric Water Heater Ice Maker Microwave Electric Range Wall Oven Washer |
| Parking 1 Space Additional Spaces Available |
| Other Facts |
|---|
| Heating Central Electric Heat Strip |
| Cooling Ceiling Fan(s) Central Air Electric |
| Electric Fuse Box |
| Flooring Ceramic Floor |
| Window Features Clear Impact Glass Complete Impact Glass Blinds Drapes Impact Glass Thermal Windows |
| Green Energy Appliances Construction |
| Amenities |
|---|
| Laundry Features Utility Room/Laundry Washer/Dryer Hook-Up |
| Patio And Porch Features Open Balcony |
| Association Amenities Bike/Jog Path Billiard Room Boat Dock Business Center Child Play Area Clubhouse-Clubroom Elevator(s) Exercise Room Exterior Lighting Heated Pool Kitchen Facilities Library Sauna Spa/Hot Tub |
| Architectural Style Corner Unit |
| Construction Materials Concrete Block Construction CBS Construction |
| Structure Type Condo 5+ Stories Condo |
| Accessibility Features Accessible Door Levers Accessible Elevator Installed Accessible Entrance Level |























































