20610 22nd Ct, Miami, FL 33180
For Sale $1,238,000
Description
Welcome to this beautifully upgraded single-story residence offering timeless curb appeal located in the highly desired neighborhood of Highland Lakes situated on a quiet cul-de-sac. Property offers convenient access to nearby Aventura Mall shopping, top rated schools, great dining options, houses of worship, and major roadways while maintaining a peaceful residential feel. This inviting home features 3Bedrooms/3Full baths/library-Den (possible 4th bedroom), a super cozy family/media room which includes a home theater sound system. In addition, it offers a classic tile roof (pre-inspected and professionally maintained 2025), circular driveway, enhanced by mature palms and greenery. Home is equipped with impact windows & shutters, Generac generator that provides peace of mind during any storm, 4 year old high-efficiency HVAC with new ductwork. Oversized kitchen that serves as the heart of the home, offering custom wood cabinetry, granite countertops, stainless steel appliances, double wall ovens, ample storage, and generous counter space—ideal for both everyday living and entertaining. Three updated bathrooms bright open living room & dining areas are complemented by recessed lighting and natural light throughout. Step outside to a serene backyard retreat featuring a covered patio and a freeform pool surrounded by travertine-style decking and mature landscaping, creating a private oasis perfect for relaxing or hosting guests.
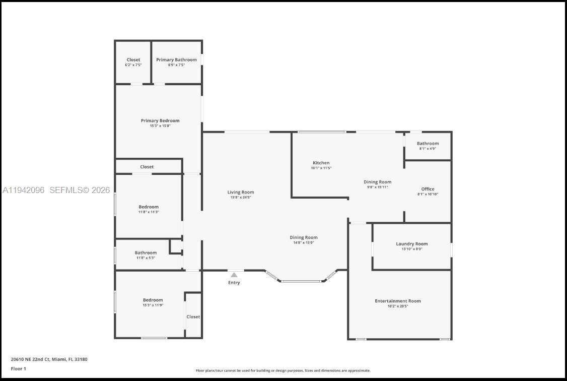
20610 22Nd Ct, Miami, Fl 33180 | Floor Plans
- Days On Market:3Listed:Jan 11, 2026
- Size:2256 ft2 (210m2)Rooms:3
- Bathrooms:3Baths Half:0
- Terms:All Cash, ConventionalProperty Facing:East
- Last Modification:3 hours ago
Property Taxes and Assessment
- Annual Tax$4,990
- Tax Year2025
- Maintenance FeeN/A
- Association FeeN/A
- TermsAll Cash, Conventional
Property Features
| Facts and features |
|---|
| Views Garden Pool |
| Interior Features First Floor Entry Built-in Features Entrance Foyer Pantry Walk-In Closet(s) Den/Library/Office Family Room Garage Converted Media Room Utility Room/Laundry |
| Appliances Dishwasher Dryer Ice Maker Microwave Gas Range Refrigerator Wall Oven Washer |
| Parking Circular Driveway Driveway |
| Other Facts |
|---|
| Heating Central |
| Cooling Ceiling Fan(s) Central Air |
| Electric Circuit Breakers |
| Window Features Partial Accordian Shutters Partial Impact Glass Hurricane Shutters Blinds Drapes High Impact Windows Other Windows |
| Roof Curved/S-Tile Roof |
| Water Source Municipal Water |
| Sewer Public Sewer |
| Green Energy HVAC |
| Amenities |
|---|
| Pool Features In Ground Equipment Stays |
| Laundry Features Utility Room/Laundry Washer/Dryer Hook-Up |
| Community Features Gated Community Maintained Community |
| Architectural Style Detached One Story Ranch |
| Construction Materials CBS Construction |
| Structure Type Pool Only House |
| Schools |
|---|
| Elementary School Highland Oaks |
| Middle Or Junior School Highland Oaks |
| High School Michael Krop |
Tell Us More About Your SearchFind your perfect condo
Courtesy Of:United Realty Group Inc





























































