3703 199th St, Aventura, FL 33180
Description
Rare opportunity to own a two-story pool home with a 2-car garage in the gated community of Country Club Estates, one of Aventura’s most desirable neighborhoods, set along the Turnberry golf course and Aventura Circle. Offering 3 bedrooms, 3 bathrooms, and 3,480 total square feet, this residence features soaring 22-foot ceilings and sun-filled living spaces that create an open, airy feel throughout. The living and dining areas flow seamlessly to a spacious patio and private pool, making it ideal for both everyday living and entertaining. The flexible garage space provides room for additional parking, storage, or a customized use to suit your lifestyle. Upstairs, the primary suite offers two walk-in closets and a spacious spa-style bath with shower. Additional highlights include a separate laundry room and zoning for ACES and Don Soffer High School. Enjoy direct access to the renowned 3-mile Aventura Circle path, perfect for morning runs, bike rides, and evening walks. Just moments from houses of worship, Aventura Mall, parks, cafes, and more. HOA includes security, landscaping, and pool service.
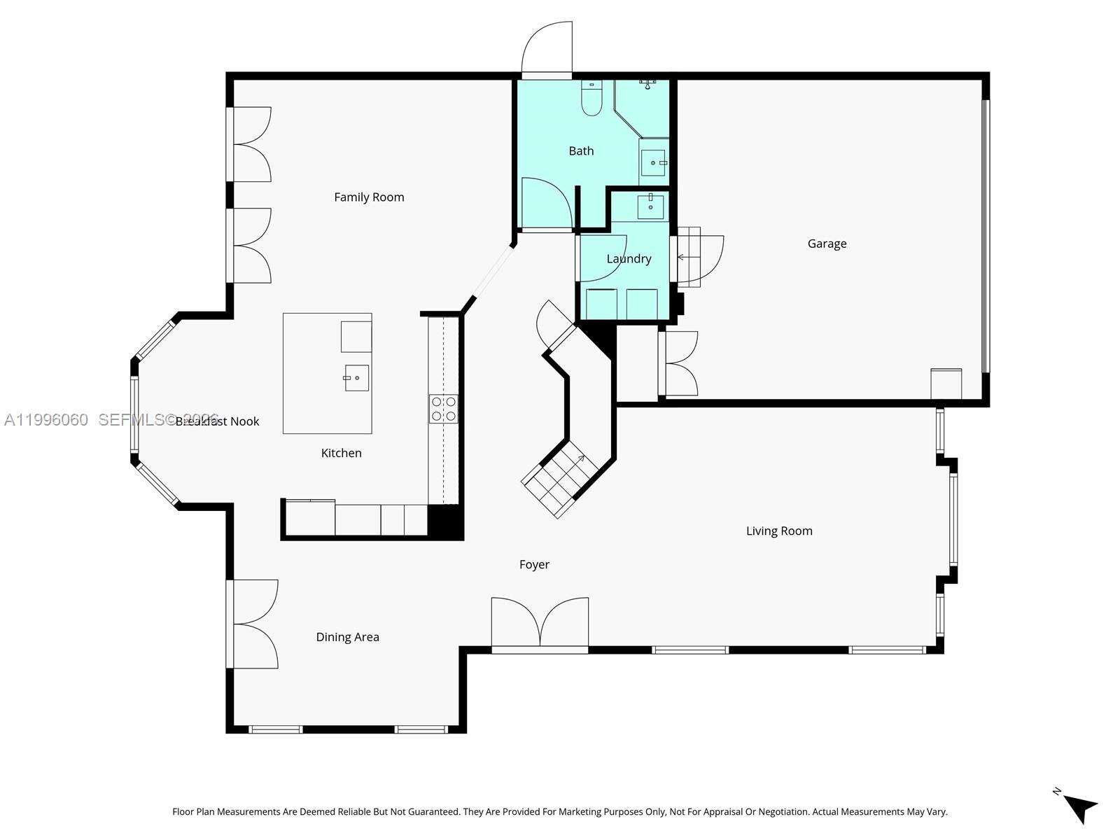
3703 199Th St, Aventura, Fl 33180 | Floor Plans
- Days On Market:0Listed:Apr 15, 2026
- Size:2970 ft2 (276m2)Rooms:3
- Bathrooms:3Baths Half:0
- Terms:All Cash, ConventionalProperty Facing:South
- Last Modification:15 hours ago
Property Taxes and Assessment
- Annual Tax$36,830
- Tax Year2025
- Maintenance FeeN/A
- Association Fee$1,200
- TermsAll Cash, Conventional
Property Features
| Facts and features |
|---|
| Views Pool |
| Interior Features First Floor Entry Built-in Features Closet Cabinetry Cooking Island French Doors Volume Ceilings Walk-In Closet(s) Den/Library/Office Utility Room/Laundry |
| Appliances Dishwasher Disposal Dryer Microwave Electric Range Self Cleaning Oven Washer |
| Parking Driveway |
| Other Facts |
|---|
| Heating Central |
| Cooling Central Air |
| Flooring Tile Wood |
| Window Features Clear Impact Glass Complete Impact Glass Blinds High Impact Windows Impact Glass |
| Door Features High Impact Doors French Doors |
| Roof Curved/S-Tile Roof |
| Water Source Municipal Water |
| Sewer Public Sewer |
| Amenities |
|---|
| Pool Features In Ground |
| Laundry Features Utility Room/Laundry |
| Patio And Porch Features Patio |
| Community Features Gated Community |
| Architectural Style Attached Two Story Modern/Contemporary |
| Construction Materials CBS Construction |
| Structure Type Pool Only House |
| Schools |
|---|
| Elementary School Aventura Waterways |
| Middle Or Junior School Highland Oaks |
| High School Don Soffer Aventura |
Ask the experts
Tell Us More About Your Search
Get custom listing picks, neighborhood insights, and pricing context tailored to your criteria.
