375 32nd Rd, Miami, FL 33129
Description
Beautifully updated home in **The Roads**, just minutes from Brickell and Coral Gables. Thoughtfully designed with both style and functionality in mind, this residence features recessed lighting, elegant crown molding, and abundant natural light throughout, enhanced by hurricane impact windows and doors. The modern kitchen showcases sleek countertops, custom cabinetry, premium finishes, and stainless steel appliances — ideal for both everyday living and entertaining. Tastefully designed bathrooms offer contemporary finishes, with the spacious primary suite featuring a double-sink vanity and oversized shower. A flowing floor plan connects seamlessly to a cozy family room and an inviting backyard retreat complete with a deck, perfect for outdoor gatherings or peaceful relaxation. There is ample room to add a pool and potential to create a second outdoor yard space. All major upgrades have been completed within the past five years, offering comfort and peace of mind. Ideally located near Miami’s top restaurants, boutique shopping, and vibrant city life — this is urban living at its best.
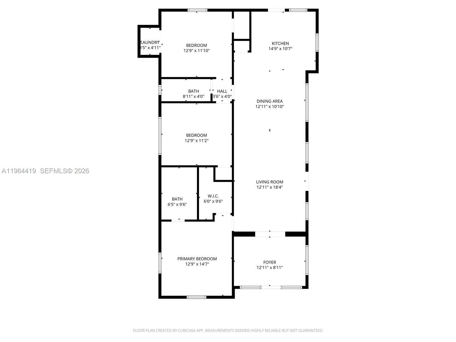
375 32Nd Rd, Miami, Fl 33129 | Floor Plans
- Days On Market:1Listed:Feb 12, 2026
- Size:1340 ft2 (124m2)Rooms:3
- Bathrooms:2Baths Half:0
- Terms:All Cash, ConventionalProperty Facing:West
- Last Modification:1 month ago
Property Taxes and Assessment
- Annual Tax$7,558
- Tax Year2025
- Maintenance FeeN/A
- Association FeeN/A
- TermsAll Cash, Conventional
Property Features
| Facts and features |
|---|
| Views Garden |
| Interior Features First Floor Entry Built-in Features Closet Cabinetry Cooking Island Family Room Separate Guest/In-Law Quarters Storage |
| Exterior Features Barbeque Lighting Fruit Trees Room For Pool |
| Appliances Trash Compactor Dishwasher Dryer Electric Water Heater Microwave Gas Range |
| Parking Driveway |
| Other Facts |
|---|
| Heating Central |
| Cooling Central Air |
| Flooring Tile Vinyl |
| Window Features Clear Impact Glass Complete Impact Glass |
| Door Features High Impact Doors |
| Roof Shingle |
| Fencing Fenced |
| Water Source Municipal Water |
| Sewer Public Sewer |
| Amenities |
|---|
| Patio And Porch Features Awning(s) Deck |
| Community Features Other Membership Available |
| Architectural Style Attached One Story |
| Construction Materials Concrete Block Construction |
| Structure Type R30-No Pool/No Water House |
| Schools |
|---|
| Elementary School Coral Way |
| Middle Or Junior School Shenandoah |
| High School Miami Senior |
Ask the experts
Tell Us More About Your Search
Get custom listing picks, neighborhood insights, and pricing context tailored to your criteria.
