1031 48th St, Miami Beach, FL 33140
For Sale $9,249,000
Description
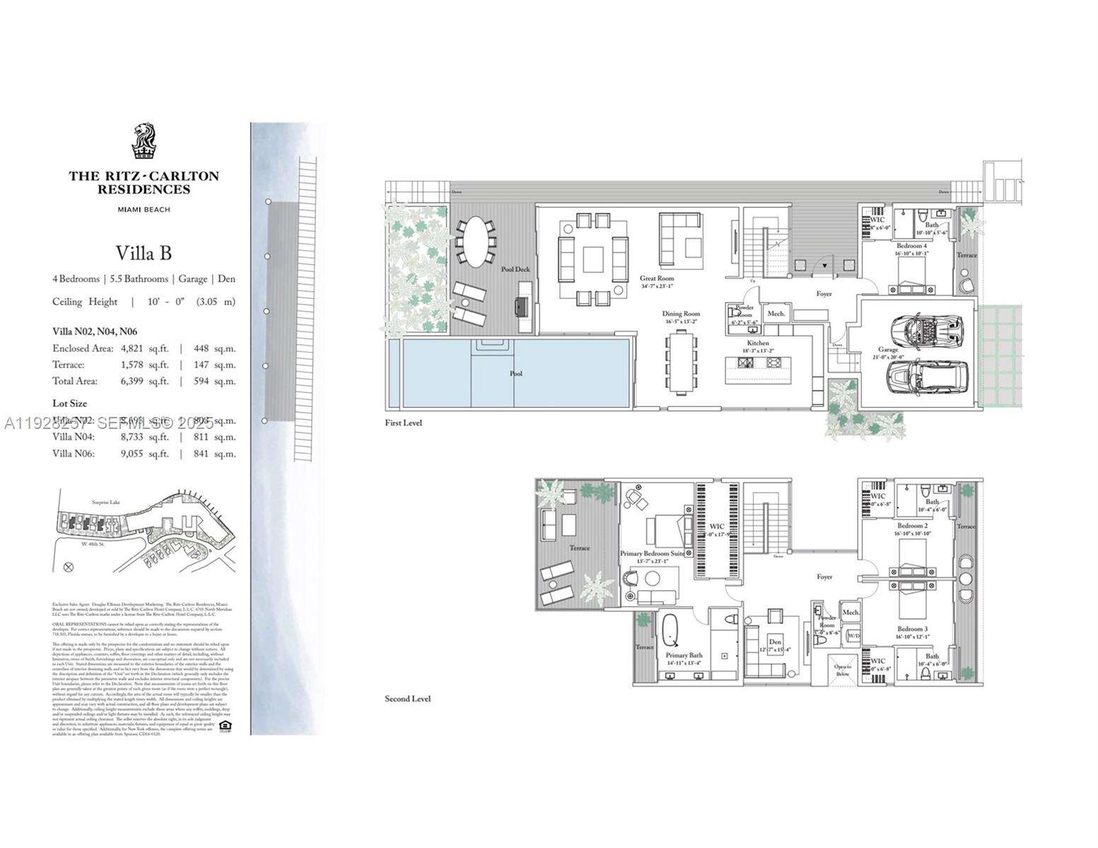
RITZ CARLTON VILLA RESIDENCE, ultimate waterfront luxury in Miami Beach. This turn-key villa, Designed by renowned architect Piero Lissoni, this 2-story, 5,000-SF estate offers 4 BR,4.5 BA & 55’ of WF, private dock w/ Biscayne Bay & Atlantic Ocean access. The villa blends luxury hotel service with the comfort of private sanctuary living. The contemporary yet warm design highlights Georgette Select limestone and wood floors, Boffi cabinetry, Gaggenau appliances, Brazilian Ipe decking, Fantini fixtures, and a gas generator. Enjoy direct access from your dock, the Intracoastal Waterway, and Atlantic Ocean.Perfect retreat that balances privacy with world-class Ritz-Carlton amenities and service. HOA INCLUDES HURRICANE & FLOOD INSURANCE, MAINTENANCE OF YARD & POOL, FULL ACCESSES TO ALL MAIN BUILDING AMENITIES, AT RESORT RITZ STANDARDS.
1031 48Th St, Miami Beach, Fl 33140 | Floor Plans
- Days On Market:1Listed:Dec 9, 2025
- Size:4257 ft2 (395m2)Rooms:4
- Bathrooms:4Baths Half:1
- Terms:All Cash, Conventional, CryptocurrencyProperty Facing:Northwest
- Last Modification:4 weeks ago
Property Taxes and Assessment
- Annual Tax$133,607
- Tax Year2024
- Maintenance FeeN/A
- Association Fee$8,556
- TermsAll Cash, Conventional, Cryptocurrency
Property Features
| Facts and features |
|---|
| Views Canal Intracoastal View Ocean Access Canal Front Fixed Bridge(S) Navigable Water |
| Interior Features First Floor Entry Built-in Features Closet Cabinetry Cooking Island Entrance Foyer Pantry Walk-In Closet(s) Den/Library/Office Family Room Great Room Maid/In-Law Quarters Media Room Recreation Room Sauna Utility Room/Laundry |
| Exterior Features Built-In Grill Lighting |
| Appliances Dishwasher Dryer Free-Standing Freezer Ice Maker Microwave Other Equipment/Appliances Water Purifier Gas Range Refrigerator Wall Oven Washer |
| Parking Attached Carport Additional Spaces Available Covered Driveway |
| Other Facts |
|---|
| Heating Electric Heat Pump/Reverse Cycle |
| Cooling Central Air Zoned |
| Flooring Marble Parquet Wood |
| Window Features Blinds Drapes High Impact Windows |
| Door Features High Impact Doors |
| Roof Concrete |
| Fencing Fenced |
| Water Source Municipal Water |
| Sewer Public Sewer |
| Amenities |
|---|
| Pool Features Above Ground Automatic Chlorination Fenced Equipment Stays Heated |
| Spa Features Community |
| Laundry Features Utility Room/Laundry |
| Patio And Porch Features Deck Open Porch Patio |
| Community Features Additional Amenities Pool Exercise Room Game Room Management On Site Mandatory Hoa Other Membership Included Sauna Security Patrol Spa/Hot Tub |
| Architectural Style Attached Two Story Modern/Contemporary |
| Construction Materials Concrete Block With Brick Elevated Construction |
| Structure Type House |
Tell Us More About Your SearchFind your perfect condo
Courtesy Of:Gary Hennes Realtors









































































