101 20th St, Miami Beach, FL 33139
For Sale $15,750,000
Description
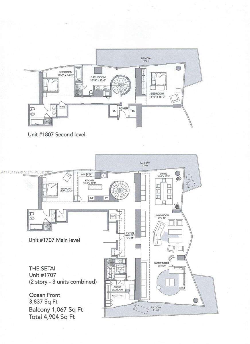
A designer duplex home at the prestigious Setai Miami Beach. This 4-bedroom, 4-bathroom, two-story duplex residence combined by the developer offers over 3,800 SF of thoughtfully designed interiors, featuring Venetian plaster, high-end finishes, and expansive formal and informal living spaces that create a true sense of home. Spacious corner bedroom suites and over 1,000 SF of wraparound terraces showcase breathtaking ocean views and the vibrant energy of Miami Beach. Enjoy world-class resort amenities, including 24-hour room service, three exceptional restaurants, and pool and beachside services. An extraordinary opportunity to own at this quintessential Miami Beach address.
Setai | Floor Plans
- Days On Market:244Listed:Nov 29, 2024
- Size:3837 ft2 (356m2)Rooms:4
- Bathrooms:4Baths Half:0
- Terms:All CashProperty Facing:East
- Last Modification:4 months agoPrice Change:-12.5%
Property Taxes and Assessment
- Annual Tax$138,494
- Tax Year2023
- Maintenance Fee$631
- Association Fee$16,996
- TermsAll Cash
Property Features
| Facts and features |
|---|
| Views Bay Intracoastal View Direct Ocean Ocean Front |
| Interior Features Lobby First Floor Entry Second Floor Entry Closet Cabinetry Fire Sprinklers Walk-In Closet(s) |
| Exterior Features Open Balcony |
| Appliances Dishwasher Disposal Dryer Electric Water Heater Ice Maker Microwave Electric Range Refrigerator Wall Oven |
| Parking 2 Or More Spaces Guest Valet Limited # Of Vehicle |
| Other Facts |
|---|
| Heating Central Electric |
| Cooling Central Air Electric |
| Electric Circuit Breakers |
| Flooring Carpet Ceramic Floor Marble |
| Window Features Clear Impact Glass Complete Impact Glass Blinds High Impact Windows Impact Glass |
| Door Features High Impact Doors |
| Amenities |
|---|
| Laundry Features Washer/Dryer Hook-Up |
| Patio And Porch Features Open Balcony |
| Association Amenities Bar Elevator(s) Exercise Room Heated Pool Pool Sauna Spa/Hot Tub Trash Chute |
| Architectural Style Corner Unit High Rise |
| Construction Materials Concrete Block Construction CBS Construction Piling Construction Slab Construction |
| Structure Type Condo 5+ Stories Condo |
| Schools |
|---|
| Elementary School South Pointe |
| Middle Or Junior School Nautilus |
| High School Miami Beach |

































