2301 Collins Ave, Miami Beach, FL 33139
For Sale $5,500,000
Description
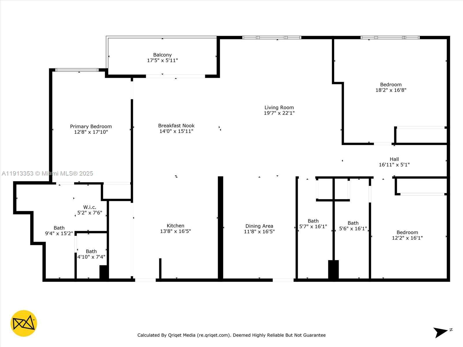
An extraordinary 2,480 sq. ft. residence in the heart of South Beach, where luxury and design meet effortless coastal living. Located within the prestigious 1 Hotel & Homes at Roney, this remarkable combination of three residences was masterfully redesigned by renowned Italian designer Rafael Tierni. Every detail exudes sophistication — from the custom ORNARE kitchen with Sub-Zero and Miele appliances to the elegant ORNARE closets and refined Artefacto furnishings. Offered fully furnished and move-in ready, this home features three king-bedroom suites, three modern bathrooms, in-unit laundry, and three valet parking spaces. Designed for those who seek the perfect blend of comfort, style, and the ultimate South Beach lifestyle.
Roney Palace | Floor Plans
- Days On Market:11Listed:Nov 13, 2025
- Size:2480 ft2 (230m2)Rooms:3
- Bathrooms:3Baths Half:0
- Terms:ConventionalProperty Facing:N/A
- Last Modification:6 hours ago
Property Taxes and Assessment
- Annual Tax$29,855
- Tax Year2024
- Maintenance FeeN/A
- Association Fee$5,149
- TermsConventional
Property Features
| Facts and features |
|---|
| Views Bay Intracoastal View Skyline Intracoastal Front Ocean Access Ocean Front |
| Interior Features First Floor Entry Built-in Features Closet Cabinetry Cooking Island Elevator Split Bedroom Walk-In Closet(s) Family Room |
| Exterior Features Open Balcony |
| Appliances Dishwasher Dryer Ice Maker Microwave Other Equipment/Appliances Electric Range Refrigerator Self Cleaning Oven Washer |
| Parking 2 Or More Spaces Guest Valet |
| Other Facts |
|---|
| Cooling Central Air |
| Electric Circuit Breakers |
| Window Features Clear Impact Glass Complete Impact Glass |
| Door Features High Impact Doors |
| Amenities |
|---|
| Patio And Porch Features Open Balcony |
| Association Amenities Bar Cabana Laundry Elevator(s) Exercise Room Exterior Lighting Heated Pool Pool Private Pool Spa/Hot Tub Trash Chute |
| Architectural Style High Rise |
| Construction Materials CBS Construction |
| Structure Type Condo 5+ Stories Condo |
| Accessibility Features Accessible Elevator Installed Wheelchair |
| Schools |
|---|
| Elementary School North Beach |
| Middle Or Junior School Nautilus |
| High School Miami Beach |






























































